


Brutalist Concept Gallery, Taipei
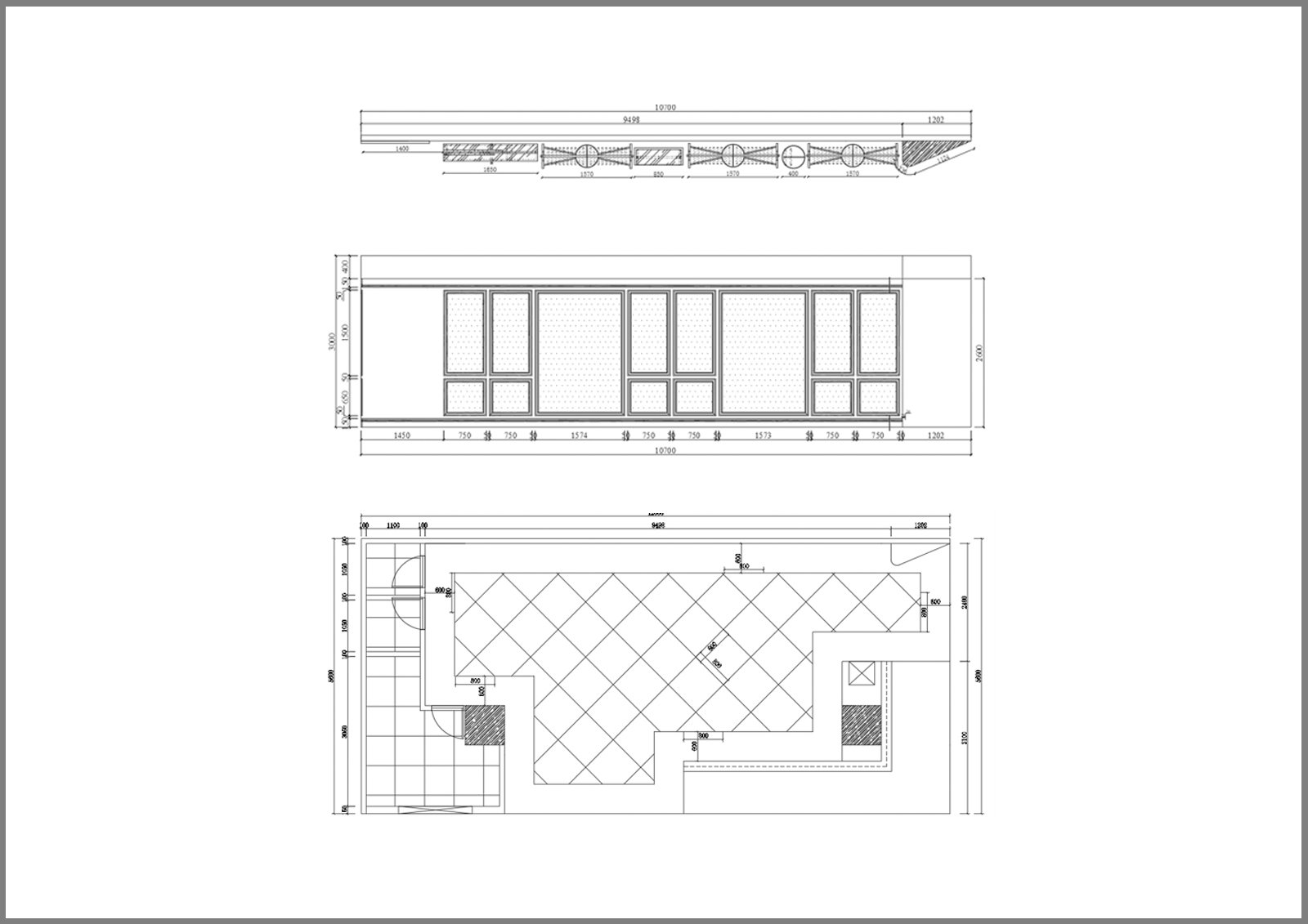
Located in Taipei, Taiwan (1,800 sqm / 25,800 sqft), this raw yet refined space exposes textured concrete surfaces, angular skylights, and monolithic exhibition volumes. Designed for experimental installations, it merges brutalist weight with precise voids that frame light and movement as living art.